Designing Bussines Plan and Company Profile
1. Background
With the development of the times, building design planning has become more advanced, supported by various technologies. The rapid development of the world of building design can be seen from the diverse and unique building designs. More and more people are aware of the factors needed for a building to be strong, comfortable and safe. We take the opportunity to fulfill the demand for building planning designs by providing various talents with designs that are unique and have their own strengths.
2. Purpose
PT GRIAN was established to meet the needs and demands of the community for building planning designs. Client requests will be carried out by a professional in their field. We provide quality products and services in terms of function, comfort and aesthetics to become the first choice for consumers.
3. About Us
PT GRIAN is a company that provides design and building consulting services. Initially the company was a service provider that was only founded by a new graduate to gain experience. As time went by, PT GRIAN became better known and reached more consumers until finally it now has more employees and can create job opportunities.
In the future, we are trying to develop PT GRIAN for a better future. We also hope that in the future PT GRIAN will be your number one trust for planning buildings throughout Indonesia.
4 Vision and Mission
Vision :
Providing the best experience for clients in entrusting their building planning and providing satisfaction for clients after using our services.
Mission:
• Become the main choice of consumers.
• Prioritizing customer satisfaction with quality products and services.
• To be at the forefront of the building design business.
• Professional and quality
5. Company Data
Company name : PT GRIAN
Line of business : Building design and consulting services
Types of products/services: Design of residential houses, multi-storey buildings, shop houses, and others.
Company address : Jl. Kencana wargaya raya No. 7, Mranggen
Phone number : 000-111-222-333
Email : Grianbuild4u@gmail.com
Website : grianbuild4u.com
Ig :@Griarch_design
PRODUCTION PROCESS
With several experts in the company, the services that GRIAN COMPANY can provide include:
1) Residential Construction Design Services
These services include construction planning services and calculating the draft budget for one-story residential houses, two-story residential houses, one-floor shophouses and two-floor shophouses.
2) Interior and exterior design services
These services include interior and exterior building design services as well as calculating the draft budget for costs incurred for the production process.
3) 3D Modeling
These services include making 3D models in the form of rendering or in the form of mockups according to the client's request. Prices for 3D modeling are based on the size and level of difficulty of the design provided by the client.
7. Production Process
1) Analysis Stage
The Analysis phase is carried out to understand the client's wishes for the plan. This stage usually involves a lot of questions and answers to understand the client's wishes.
2) Planning
The planning process creates a design outline.
3) Design Making
The draft results that have been approved by the client become a reference for creating a more perfect original building design.
4) Revision
At the revision stage, the client will see the suitability between their desires and needs and the model. If the client feels it is not appropriate then a revision process will be carried out.
5) Final design
The designer will prepare the output based on the final design, the designer will also check the design results again to reduce the risk of errors
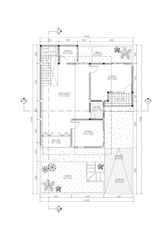
The following is an example of one of our designed products:
SERVICE PACKAGE
9. Price of services
1) Diamond Package Prices
This package is a super complete package with satisfactory services and product quality. The advantage of this package is that clients are free to provide revisions without restrictions until the client is satisfied with the results we provide. The processing time for this package is 5 working days. The following are the facilities:
2) Gold Package Price
This service package contains design drawings, structural drawings and utility drawings. This package offers quality facilities at a medium price. The processing time for this gold package is 7 days. The following are the facilities offered for the gold package:
3) Platinum Package Price
This service package contains design drawings, structural drawings, and utility drawings. This package offers quality facilities at an affordable price. The processing time for this platinum package is 10 days. The following are the facilities offered for the platinum package:
Based on the offer we attached, we hope to work with you and entrust us with the planning of your building. If you need further information about us, please contact our staff below:
Kevin Nanjaya
Number tlf : 000-888-666-444
Email : Kevinnjaya00@gmail.com
PLAGIARISM CHECK
1. Results of mark checks at the Directorate General of Intellectual Property (DJKI)
2. Plagiarism check results
3. Company Profile Link (flip book)
a. PPT
b. GRIAN COMPANY PROFILE (flipbook)










Komentar